Description
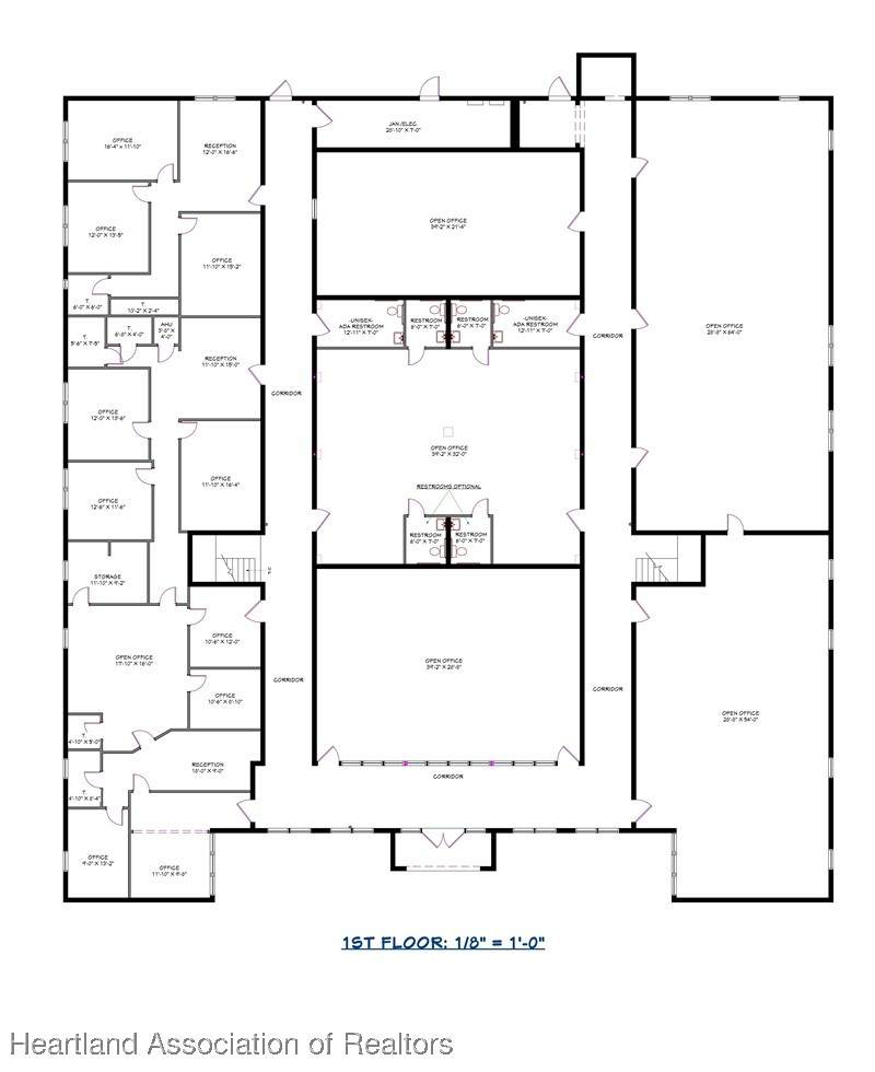
Now pre-leasing Phase 1 of the Macbeth Building, a commercial property currently under renovation and designed to accommodate a variety of professional and service-based uses. Secure your space prior to completion and enjoy the advantage of being among the first tenants with preferred suite selection and layout flexibility. Phase 1 offers UP TO 2,550± SF total, available as: One full suite, or two separate spaces of approximately 757± SF and 1,793± SF. Private restrooms are available within select suites, along with public ADA-compliant restrooms. Ideal for office, professional services, administrative use, and related businesses. LEASE RATE IS $19/SF ANNUALLY.. Located in the heart of Downtown Sebring, the property does feature parking spaces on-site, street parking, and two nearby public parking lots. The closest is approximately 370 feet from the front door and the second is about 500 feet from the front door. Tthe property is surrounded by the Highlands County Courthouse, county and city administrative offices, Sebring Middle and Sebring High School, the Historic Sebring Circle, restaurants, and an established mix of professional offices including attorneys, CPAs, title companies, mortgage originators, spa/beauty services, and light medical office. Phase 2 (Future Availability): Three additional open office spaces anticipated at approximately 1,131± SF, 1,152± SF, and 1,792± SF. These spaces are well-suited for meeting facilities, non-profits, social organizations, office, retail, or build-to-suit concepts. This pre-leasing phase presents a rare opportunity to customize your footprint in a revitalized downtown building. Secure your spot early and help shape the future of the Macbeth Building on S. Commerce Ave. *Availability date is subject to change
-
0BEDS
-
0.67ACRES
-
0BATHS
-
01/2 BATHS
-
1,793SQFT
-
$2$/SQFT
School Ratings & Info
Description
Now pre-leasing Phase 1 of the Macbeth Building, a commercial property currently under renovation and designed to accommodate a variety of professional and service-based uses. Secure your space prior to completion and enjoy the advantage of being among the first tenants with preferred suite selection and layout flexibility. Phase 1 offers UP TO 2,550± SF total, available as: One full suite, or two separate spaces of approximately 757± SF and 1,793± SF. Private restrooms are available within select suites, along with public ADA-compliant restrooms. Ideal for office, professional services, administrative use, and related businesses. LEASE RATE IS $19/SF ANNUALLY.. Located in the heart of Downtown Sebring, the property does feature parking spaces on-site, street parking, and two nearby public parking lots. The closest is approximately 370 feet from the front door and the second is about 500 feet from the front door. Tthe property is surrounded by the Highlands County Courthouse, county and city administrative offices, Sebring Middle and Sebring High School, the Historic Sebring Circle, restaurants, and an established mix of professional offices including attorneys, CPAs, title companies, mortgage originators, spa/beauty services, and light medical office. Phase 2 (Future Availability): Three additional open office spaces anticipated at approximately 1,131± SF, 1,152± SF, and 1,792± SF. These spaces are well-suited for meeting facilities, non-profits, social organizations, office, retail, or build-to-suit concepts. This pre-leasing phase presents a rare opportunity to customize your footprint in a revitalized downtown building. Secure your spot early and help shape the future of the Macbeth Building on S. Commerce Ave. *Availability date is subject to change
© 2026 Heartland Association of Realtors, Inc. All rights reserved. IDX information is provided exclusively for consumers' personal, non-commercial use and may not be used for any purpose other than to identify prospective properties consumers may be interested in purchasing. Information is deemed reliable but is not guaranteed accurate by the MLS or Heritage Group. Data last updated: 2026-03-10T23:42:29.89.
