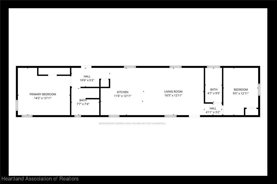
Description
Welcome to this move-in ready mobile home on owned land (NO LOT RENT!) located in the Sebring Manor neighborhood of Sebring, FL (NO HOA FEES)! Impressively spacious Mobile Home on Owned Land - 2 bedrooms offering generous amounts of closet space, 2 full bathrooms, nicely appointed central eat-in kitchen, PLUS it is being offered fully furnished! The main central living areas are bright and open with carpet flooring present. The 11'x12' eat-in kitchen has plenty of cabinets and counter space PLUS a breakfast bar! The spacious primary bedroom offers a generously sized closet and adjacent bathroom with a large soak tub! The exterior 16'x10' workshop/shed is conveniently located behind the home to allow for supplemental covered storage, the washer & dryer is located inside this shed and will convey with the sale of the property. Slightly less than 1/4 acre of YOUR OWN LAND on an attractive interior location - NO LOT RENT! To be sold AS IS, FULLY FURNISHED.
-
2BEDS
-
0.14ACRES
-
2BATHS
-
01/2 BATHS
-
924SQFT
-
$118$/SQFT
School Information
Description
Welcome to this move-in ready mobile home on owned land (NO LOT RENT!) located in the Sebring Manor neighborhood of Sebring, FL (NO HOA FEES)! Impressively spacious Mobile Home on Owned Land - 2 bedrooms offering generous amounts of closet space, 2 full bathrooms, nicely appointed central eat-in kitchen, PLUS it is being offered fully furnished! The main central living areas are bright and open with carpet flooring present. The 11'x12' eat-in kitchen has plenty of cabinets and counter space PLUS a breakfast bar! The spacious primary bedroom offers a generously sized closet and adjacent bathroom with a large soak tub! The exterior 16'x10' workshop/shed is conveniently located behind the home to allow for supplemental covered storage, the washer & dryer is located inside this shed and will convey with the sale of the property. Slightly less than 1/4 acre of YOUR OWN LAND on an attractive interior location - NO LOT RENT! To be sold AS IS, FULLY FURNISHED.
© 2026 Heartland Association of Realtors, Inc. All rights reserved. IDX information is provided exclusively for consumers' personal, non-commercial use and may not be used for any purpose other than to identify prospective properties consumers may be interested in purchasing. Information is deemed reliable but is not guaranteed accurate by the MLS or Heritage Group. Data last updated: 2026-03-13T09:42:30.943.
