Description
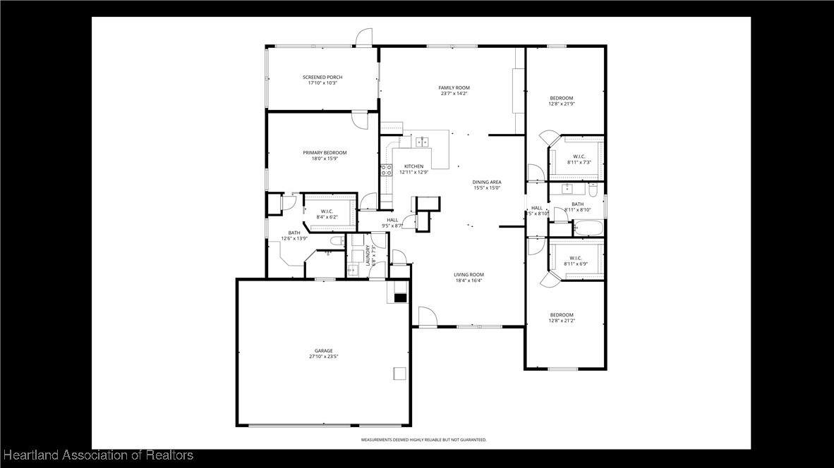
SELLER HAS ACCEPTED AN OFFER WITH A 72-HOUR KICK-OUT CLAUSE. Located in the highly desirable neighborhood of Harder Hall in Sebring, FL - this beautifully maintained 2018 custom-built home offers exceptional quality craftsmanship, thoughtful upgrades, and a spacious layout designed for both privacy and entertaining! If you’re looking to skip the frustrations of building and move right into a well-appointed home that allows you to start enjoying the Florida lifestyle immediately, this property checks all the boxes. Boasting over 2,200 square feet of living space alone on over 1/4 acre of land - 3 spacious bedrooms, 2 well-equipped bathrooms on a split floor plan, Huge 2+ car garage, plus SO MUCH MORE! From the moment you arrive at the stunning brick paver driveway, you’ll appreciate the attention to detail and pride of ownership throughout. Notable features include a standing seam metal roof, upgraded Thermopane tinted windows, crown molding, security system, whole-house water filtration system, and reverse osmosis filtration at the kitchen sink. All bedrooms feature generous walk-in closets, providing excellent storage and comfortable living spaces for everyone. The back yard is fully white vinyl fenced for privacy and includes an 8x8 storage shed for added convenience. The open-concept floor plan is ideal for gathering and entertaining - centered around a spacious kitchen complete with white wood cabinetry, High quality Granite countertops, fingerprint-resistant stainless steel appliances, and abundant cabinet & pantry storage. The kitchen flows seamlessly into the family room with built-in Granite accented entertaining/home office features and designated dining area, creating a warm and inviting atmosphere. Featuring private access to the enclosed rear porch and a large walk-in closet - the primary suite is a true retreat! The ensuite bath comes complete with an 8x6 walk-in closet, white cabinetry, dual sink granite vanity, and a large tiled walk-in shower. The 2 generously sized secondary bedrooms on the opposite side of the home each include a walk-in closet. The 2nd bathroom offers a granite-topped white vanity, tub/shower combination and linen closet. The laundry room is conveniently located between the kitchen and garage and includes a utility sink, additional cabinetry, and washer & dryer included with the sale of the property - perfect for everyday functionality! The oversized garage provides ample room for vehicles, toys, separate golf cart parking, and features a skeeter-beater screen on the golf cart garage door. Enjoy year-round comfort in the rear enclosed porch, outfitted with vinyl windows and its own mini-split system overlooking the fenced-in back yard. High quality Berber carpet and tile flooring offered throughout the home. Centrally located near golf courses, restaurants, shopping, and more – plus NO HOA FEES! This move-in ready home is truly a must-see!
-
3BEDS
-
0.32ACRES
-
2BATHS
-
01/2 BATHS
-
2,284SQFT
-
$170$/SQFT
School Information
Description
SELLER HAS ACCEPTED AN OFFER WITH A 72-HOUR KICK-OUT CLAUSE. Located in the highly desirable neighborhood of Harder Hall in Sebring, FL - this beautifully maintained 2018 custom-built home offers exceptional quality craftsmanship, thoughtful upgrades, and a spacious layout designed for both privacy and entertaining! If you’re looking to skip the frustrations of building and move right into a well-appointed home that allows you to start enjoying the Florida lifestyle immediately, this property checks all the boxes. Boasting over 2,200 square feet of living space alone on over 1/4 acre of land - 3 spacious bedrooms, 2 well-equipped bathrooms on a split floor plan, Huge 2+ car garage, plus SO MUCH MORE! From the moment you arrive at the stunning brick paver driveway, you’ll appreciate the attention to detail and pride of ownership throughout. Notable features include a standing seam metal roof, upgraded Thermopane tinted windows, crown molding, security system, whole-house water filtration system, and reverse osmosis filtration at the kitchen sink. All bedrooms feature generous walk-in closets, providing excellent storage and comfortable living spaces for everyone. The back yard is fully white vinyl fenced for privacy and includes an 8x8 storage shed for added convenience. The open-concept floor plan is ideal for gathering and entertaining - centered around a spacious kitchen complete with white wood cabinetry, High quality Granite countertops, fingerprint-resistant stainless steel appliances, and abundant cabinet & pantry storage. The kitchen flows seamlessly into the family room with built-in Granite accented entertaining/home office features and designated dining area, creating a warm and inviting atmosphere. Featuring private access to the enclosed rear porch and a large walk-in closet - the primary suite is a true retreat! The ensuite bath comes complete with an 8x6 walk-in closet, white cabinetry, dual sink granite vanity, and a large tiled walk-in shower. The 2 generously sized secondary bedrooms on the opposite side of the home each include a walk-in closet. The 2nd bathroom offers a granite-topped white vanity, tub/shower combination and linen closet. The laundry room is conveniently located between the kitchen and garage and includes a utility sink, additional cabinetry, and washer & dryer included with the sale of the property - perfect for everyday functionality! The oversized garage provides ample room for vehicles, toys, separate golf cart parking, and features a skeeter-beater screen on the golf cart garage door. Enjoy year-round comfort in the rear enclosed porch, outfitted with vinyl windows and its own mini-split system overlooking the fenced-in back yard. High quality Berber carpet and tile flooring offered throughout the home. Centrally located near golf courses, restaurants, shopping, and more – plus NO HOA FEES! This move-in ready home is truly a must-see!
© 2026 Heartland Association of Realtors, Inc. All rights reserved. IDX information is provided exclusively for consumers' personal, non-commercial use and may not be used for any purpose other than to identify prospective properties consumers may be interested in purchasing. Information is deemed reliable but is not guaranteed accurate by the MLS or Heritage Group. Data last updated: 2026-03-10T22:42:31.337.
