Description
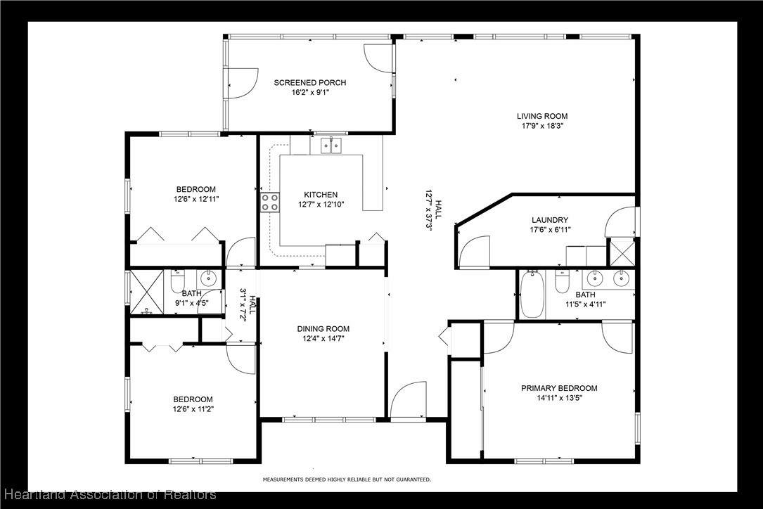
Wow!! Your lakefront dream home is here! Situated on over 1 acre of pristine Florida waterfront land on Lake Arbuckle in Avon Park, FL - this stunning homestead is now ready for new owners to enjoy! Everything on this gorgeous Ranch style home has been masterfully well maintained throughout the years. 3 spacious bedrooms on a split floor plan, 2 full bathrooms & a shower in the indoor utility room, Cypress wood accents, Exterior pole barn with generously sized tack room, dock, plus so much more! The immaculate landscaping and exceptional curb appeal will make you so happy to arrive home in a beautiful setting every day! Upon entering through the front door entryway, the designated formal dining area containing a beautiful view of the front yard is immediately to the left. Continuing into the home reveals the large family room with Lake Arbuckle views through a custom bay window and the HUGE kitchen fully equipped with stainless steel appliances, plenty of cabinet/counter space, and breakfast bar providing for extra barstool seating. Adjacent screened-in back porch incorporates a stunning view of the surrounding land and lake. Super convenient indoor laundry room with shower is located next to the covered carport and exterior storage room! The spacious 14'x13' primary bedroom contains a generous amount of closet space as well as an en-suite bathroom with shower/tub combo. The 2 secondary bedrooms are on the opposite side of the home as well as the 2nd bathroom equipped with a fully tiled walk-in shower. The perfect home for your horse - the 21'x57' pole shed also contains separate stalls and a storage room for your supplies. Artesian well and septic tank utilities. Wood laminate and tile flooring throughout the home. Updates include a recently new well water tank, water heater updated approximately 7 years ago, Boat dock built in 2009, full metal roof replaced in 2004. Lake Arbuckle is a pristine, shallow lake with little offshore structure and maximum depth of 12 feet. Ideal location for an avid fisher since the boat ramp is located close by in the fish camp - trophy bass up to 15 pounds have been caught at Lake Arbuckle in recent years! Residents in this neighborhood enjoy not having to pay any Homeowner's Association or Special District Fees. *Extended family members also own the adjacent 20 acres of land - will be open to consider a serious offer.
-
3BEDS
-
1.18ACRES
-
2BATHS
-
01/2 BATHS
-
1,861SQFT
-
$214$/SQFT
School Information
Description
Wow!! Your lakefront dream home is here! Situated on over 1 acre of pristine Florida waterfront land on Lake Arbuckle in Avon Park, FL - this stunning homestead is now ready for new owners to enjoy! Everything on this gorgeous Ranch style home has been masterfully well maintained throughout the years. 3 spacious bedrooms on a split floor plan, 2 full bathrooms & a shower in the indoor utility room, Cypress wood accents, Exterior pole barn with generously sized tack room, dock, plus so much more! The immaculate landscaping and exceptional curb appeal will make you so happy to arrive home in a beautiful setting every day! Upon entering through the front door entryway, the designated formal dining area containing a beautiful view of the front yard is immediately to the left. Continuing into the home reveals the large family room with Lake Arbuckle views through a custom bay window and the HUGE kitchen fully equipped with stainless steel appliances, plenty of cabinet/counter space, and breakfast bar providing for extra barstool seating. Adjacent screened-in back porch incorporates a stunning view of the surrounding land and lake. Super convenient indoor laundry room with shower is located next to the covered carport and exterior storage room! The spacious 14'x13' primary bedroom contains a generous amount of closet space as well as an en-suite bathroom with shower/tub combo. The 2 secondary bedrooms are on the opposite side of the home as well as the 2nd bathroom equipped with a fully tiled walk-in shower. The perfect home for your horse - the 21'x57' pole shed also contains separate stalls and a storage room for your supplies. Artesian well and septic tank utilities. Wood laminate and tile flooring throughout the home. Updates include a recently new well water tank, water heater updated approximately 7 years ago, Boat dock built in 2009, full metal roof replaced in 2004. Lake Arbuckle is a pristine, shallow lake with little offshore structure and maximum depth of 12 feet. Ideal location for an avid fisher since the boat ramp is located close by in the fish camp - trophy bass up to 15 pounds have been caught at Lake Arbuckle in recent years! Residents in this neighborhood enjoy not having to pay any Homeowner's Association or Special District Fees. *Extended family members also own the adjacent 20 acres of land - will be open to consider a serious offer.
Related Properties
© 2025 Heartland Association of Realtors, Inc. All rights reserved. IDX information is provided exclusively for consumers' personal, non-commercial use and may not be used for any purpose other than to identify prospective properties consumers may be interested in purchasing. Information is deemed reliable but is not guaranteed accurate by the MLS or Jeff Cohn | Heritage Group. Data last updated: 2025-11-13T15:42:48.91.
